桃園區大樓法拍

法拍屋查詢,法拍屋流程,法拍屋代標

桃園區大樓法拍|一樓4房車位早安藝文莊二街2128號1樓

一樓【早安藝文】莊二街212-8號1樓
列印
  • 售2296萬
    售1837萬
    1. 案號:114八74058
    2. 類型:法拍大樓_一樓
    3. 總登記坪數:
    4. 每坪單價:
    5. 地址:桃園市桃園區莊二街212-8號1樓
    1. (煩請告知聯絡人,您是在House-Info房屋網看到廣告,感恩幫忙)
    2. 0916-000-104
    1. 市話:
    2. 公司名稱:
    3. 公司地址:
    一樓【早安藝文】莊二街212-8號1樓-QR CODE 我要留言 加LINE好友
物件介紹
詳細資料
銷售狀態
待標中
格局
4房,2廳,2衛,2陽台,1廚房
社區/大樓
屋齡
8年
車位
坡道式平面車位
座向
朝北
無障礙環境
所在樓層
1/14
管委會
中庭
電梯
邊間
法拍屋
拍次
3
開標日期
115/4/8
瀏覽人次
1010人次
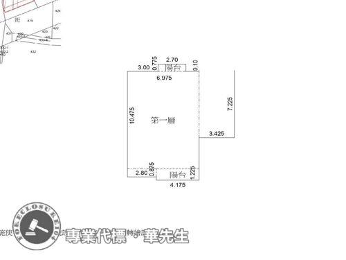
坪數說明
主建物
30.33
附屬建物
2.18
公共設施
16.57
停車位
8.5
土地登記總坪數
11.51
特色描述
貸款才是決勝點,提供預審,保證核貸
千萬經理人,接任台灣不動產拍賣協會監事 


◆門牌:莊二街212-8號1樓
◆主建物:30.33坪
◆附屬:2.18坪
◆公設:16.57坪
◆車位:8.5坪
【1車║坡平式║編號66】
◆土地:11.51坪
◆土地現值【住宅區■114年公告現值:89200元/㎡】
◆房屋用途:RC造/住家用
◆房屋樓層:所在1樓/總樓層14樓
◆房屋朝向:朝北

◎房屋格局:4房/2廳/2衛(此格局為原建設規劃或內政部實價登錄,僅供參考,以現況為準!)
◎交通動線:開車5分鐘上國道一號、鄰近中正路、寶慶路
◎公車站牌:綠意心賞[樂活巴]
◎生活機能:全聯福利中心
◎鄰近學校:莊敬國民小學
【法院筆錄】●點交情形→不點交●
1‧本件標的建物假扣押查封時據在場人表示有人居住,屋後空間為公共設施,另履勘現場時有自稱債務人公司之法定代理人在場,其表示建物目前出租予第三人使用,並稱車位目前與住戶有買賣訴訟,另據債務人陳報書面租賃契約(期間111.3.1~116.2.28)。惟本件標的建物實際使用狀況,仍請投標人應自行至現場查明瞭解後俾決定是否應買。
2‧本件停車位所有權爭議據債務人陳報經本院110年訴字第1208號判決在案,本件停車位之有無、實際編號及公共設施空間有無約定使用請應買人自行查明或向大樓管理委員會查詢,停車位不在點交之列且拍定後應買人不得以停車位有無為由請求撤銷拍定,請應買人注意。《清償債務》

※無人買受時,酌減20%估算,概以執行單位公告為準
第一拍 01/21 底標價:2870 萬
第二拍 03/11 底標價:2296 萬
第三拍 04/08 底標價:1837 萬
第四拍 未定 底標價:1654 萬

王牌經理人,十六年以上法拍經驗豐富
眼光最精準,代標多筆億元以上的案件
在地最深耕,資源豐富廣闊人脈執行力
協助自用者,找到理想實用的房屋圓夢
幫助投資人,創造物件最高投資報酬率
最專業團隊,讓您案件事半功倍又圓滿


【在地深耕,眼光精準,人脈廣闊】 
■產權清楚、案件評估、排除瑕疵事故
■全程負責、快速交屋、拍後不被騷擾
■代墊利率6.3%、額度8成、手續費0.3%
■房貸利率2.65%、免排隊、立即撥款
■法拍屋代墊款、需要資金、歡迎找我

104法拍網|透明房訊|全國最大 
◆規模最大◈歷史最久◆
全國七處分公司,300多位編制人員
成立於1986年,全國16家法院駐點
◆專業最強◈全國唯一◆
全國超過1800場授課專業講習
100坪倉庫,造冊拍賣遺留物
◆正派經營◈開立發票◆
營業員(99)登159091號
經紀人(96)年北市經證字01243號
一零四法拍網(股),統編28306523


能看屋的,網頁會註明。一般法拍屋查封之後無法入內參觀,可依據建物平面圖推斷室內格局是否方正,或參考樓上樓下鄰居房屋。( 預約看屋留言,一律不回 )
桃園桃園區法拍大樓-0
桃園桃園區法拍大樓-0
桃園桃園區法拍大樓-1
桃園桃園區法拍大樓-1
桃園桃園區法拍大樓-2
桃園桃園區法拍大樓-2
桃園桃園區法拍大樓-3
桃園桃園區法拍大樓-3
桃園桃園區法拍大樓-4
桃園桃園區法拍大樓-4
桃園桃園區法拍大樓-5
桃園桃園區法拍大樓-5
桃園桃園區法拍大樓-6
桃園桃園區法拍大樓-6
桃園桃園區法拍大樓-7
桃園桃園區法拍大樓-7
桃園桃園區法拍大樓-8
桃園桃園區法拍大樓-8
桃園桃園區法拍大樓-9
桃園桃園區法拍大樓-9
桃園桃園區法拍大樓-10
桃園桃園區法拍大樓-10
桃園桃園區法拍大樓-11
桃園桃園區法拍大樓-11
桃園桃園區法拍大樓-12
桃園桃園區法拍大樓-12
桃園桃園區法拍大樓-13
桃園桃園區法拍大樓-13
物件留言
請注意,如果您詢問的內容與物件不相符合或是廣告,經過審核,系統將會直接刪除您的發問內容
等待圖示
相似物件
免責聲明:House-Info房屋網平台系統為租用式開放房屋買賣網站建置平台,僅提供會員查詢-桃園市,桃園區,大樓-等房屋資訊參考,並不涉入任何諮詢、交易。 物件(服務)聯絡人公佈的資訊、文字、照片、圖形、產權、廣告內容、或其他資料若有不實或違法情事,或與客戶聯絡交易過程中若衍生民事或刑事等法律問題,皆與House-Info房屋網站無關,所有商標、文章、名稱等版權,皆歸屬原著作者所有!