台南市透天法拍

法拍屋查詢,法拍屋流程,法拍屋代標

台南市透天法拍|靜巷透天小新營成功路53巷75號

近南科園區,小新營,成功路53巷75號
列印
  • 售2144萬
    售1716萬
    1. 案號:114明134129
    2. 類型:法拍透天
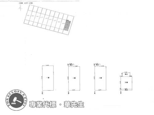
    3. 總登記坪數:
    4. 每坪單價:
    5. 地址:台南市善化區成功路53巷75號
    1. (煩請告知聯絡人,您是在House-Info房屋網看到廣告,感恩幫忙)
    2. 0916-000-104
    1. 市話:
    2. 公司名稱:
    3. 公司地址:
    近南科園區,小新營,成功路53巷75號-QR CODE 我要留言 加LINE好友
物件介紹
詳細資料
銷售狀態
待標中
屋齡
19年
車位
庭院車庫
座向
朝東北
所在樓層
1~4/4
電梯
沒有
法拍屋
拍次
4
開標日期
115/2/25
瀏覽人次
1396人次
坪數說明
主建物
54.05
附屬建物
3.85
土地登記總坪數
41.16
特色描述
貸款才是決勝點,提供預審,保證核貸
千萬經理人,接任台灣不動產拍賣協會監事 


◆門牌:成功路53巷75號
◆主建物:54.05坪
◆附屬:3.85坪
◆土地:41.16坪
◆土地現值【住宅區■114年公告現值:33600元/㎡】
◆房屋用途:鋼筋混凝土造/住家用
◆房屋樓層:所在1~4樓/總樓層4樓
◆房屋朝向:朝東北

◎投資房地產,就是要透天
【法院筆錄】●點交情形→如備註●
1‧查封時,債務人在場稱:系爭建物係由債務人自住使用,惟本件不動產實際現狀及使用情形,投標人仍應自行查證,拍定後依債務人占有現況點交,但如有其他依法不得點交之情形,本院得不點交。
2‧拍賣之建物,其中有增建部份,係未辦保存登記之建物,拍定後可否辦理第一次建物登記,由拍定人自行向地政機關洽辦,與本院權責無關。如經主關機關認屬違章建築,拍定人應自行承擔拆除風險,亦不得以建物面積之增減或位置偏移請求增減價金或撤銷拍定,請應買人特別注意。
3‧本件第一拍價格參考113年度司執字第5063號案件第3次拍賣價格核定底價。
4‧依強制執行法第113條準用同法第69條之規定,法院拍賣,不負物之瑕疵擔保責任,拍定人不得以物之瑕疵請求撤銷拍定。
5‧拍賣之土地,如拍定之價格低於所核定之土地增值稅者,依土地稅法第51條第2項規定,拍定人應代為繳足其差額,本院始能發給權利移轉證明書,應買人應自行注意。《給付票款》

※無人買受時,酌減20%估算,概以執行單位公告為準
第一拍 12/03 底標價:2680 萬
第二拍 12/24 底標價:2144 萬
第三拍 01/14 底標價:1716 萬
第四拍 02/25 底標價:1716 萬

王牌經理人,十六年以上法拍經驗豐富
眼光最精準,代標多筆億元以上的案件
在地最深耕,資源豐富廣闊人脈執行力
協助自用者,找到理想實用的房屋圓夢
幫助投資人,創造物件最高投資報酬率
最專業團隊,讓您案件事半功倍又圓滿


【在地深耕,眼光精準,人脈廣闊】 
■產權清楚、案件評估、排除瑕疵事故
■全程負責、快速交屋、拍後不被騷擾
■代墊利率6.3%、額度8成、手續費0.3%
■房貸利率2.65%、免排隊、立即撥款
■法拍屋代墊款、需要資金、歡迎找我

104法拍網|透明房訊|全國最大 
◆規模最大◈歷史最久◆
全國七處分公司,300多位編制人員
成立於1986年,全國16家法院駐點
◆專業最強◈全國唯一◆
全國超過1800場授課專業講習
100坪倉庫,造冊拍賣遺留物
◆正派經營◈開立發票◆
營業員(99)登159091號
經紀人(96)年北市經證字01243號
一零四法拍網(股),統編28306523


能看屋的,網頁會註明。一般法拍屋查封之後無法入內參觀,可依據建物平面圖推斷室內格局是否方正,或參考樓上樓下鄰居房屋。( 預約看屋留言,一律不回 )
台南善化法拍透天-0
台南善化法拍透天-0
台南善化法拍透天-1
台南善化法拍透天-1
台南善化法拍透天-2
台南善化法拍透天-2
台南善化法拍透天-3
台南善化法拍透天-3
台南善化法拍透天-4
台南善化法拍透天-4
台南善化法拍透天-5
台南善化法拍透天-5
物件留言
請注意,如果您詢問的內容與物件不相符合或是廣告,經過審核,系統將會直接刪除您的發問內容
等待圖示
免責聲明:House-Info房屋網平台系統為租用式開放房屋買賣網站建置平台,僅提供會員查詢-台南市,善化區,透天-等房屋資訊參考,並不涉入任何諮詢、交易。 物件(服務)聯絡人公佈的資訊、文字、照片、圖形、產權、廣告內容、或其他資料若有不實或違法情事,或與客戶聯絡交易過程中若衍生民事或刑事等法律問題,皆與House-Info房屋網站無關,所有商標、文章、名稱等版權,皆歸屬原著作者所有!