淡水區大樓法拍

法拍屋查詢,法拍屋流程,法拍屋代標

淡水區大樓法拍|3房車宏盛水悅新市三路一段98號4樓

3房車【宏盛水悅】新市三路一段98號4樓
列印
  • 售1511萬
    售1209萬
    1. 案號:114實112848
    2. 類型:法拍大樓
    3. 總登記坪數:
    4. 每坪單價:
    5. 地址:新北市淡水區新市三路一段98號4樓
    1. (煩請告知聯絡人,您是在House-Info房屋網看到廣告,感恩幫忙)
    2. 0916-000-104
    1. 市話:
    2. 公司名稱:
    3. 公司地址:
    3房車【宏盛水悅】新市三路一段98號4樓-QR CODE 我要留言 加LINE好友
物件介紹
詳細資料
銷售狀態
待標中
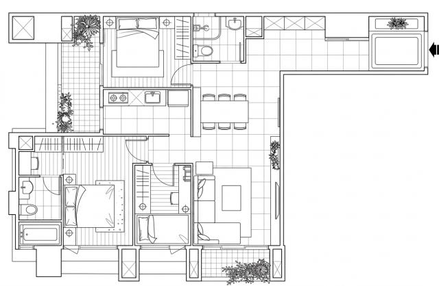
格局
3房,2廳,2衛
社區/大樓
宏盛水悅(宏盛建設)
屋齡
7年
車位
坡道平面
座向
朝西南
所在樓層
4/26
管理費
60元/坪
管委會
中庭
電梯
邊間
法拍屋
拍次
2
開標日期
115/06/10
瀏覽人次
116人次
坪數說明
主建物
26.82
附屬建物
4.59
公共設施
14.95
停車位
7.57
土地登記總坪數
8.14
特色描述
貸款才是決勝點,提供預審,保證核貸
擔任『台灣不動產拍賣協會』監事


◆己經查封,無法看室內◆
◆門牌:新市三路一段98號4樓
◆主建物:26.82 坪
◆附屬:4.59 坪
◆公設:14.95 坪
◆車位:7.57 坪
【1車║坡平式║B2-578】
◆土地:8.14 坪
◆土地現值:【第五種住宅區■115年公告現值:87100元/㎡】
◆房屋用途:RC造/住家用
◆房屋樓層:所在4樓/總樓層26樓
◆房屋朝向:朝西南
◆管理費用:60元/坪

【案件特色】
◎車位:【1車║坡平式║B2-578】
◎房屋特點:一層8戶配置3部電梯、萬坪公園旁6168坪基地、飯店式全齡化豪奢公設
◎交通動線:車程4分鐘可至輕軌淡海新市鎮站,輕鬆連繫南北
◎生活機能:車程10分鐘可抵美麗新淡海影城、家樂福、全聯、寶雅、星巴克、國民運動中心、淡水區行政中心等
◎鄰近學校:周邊環境,車程8分鐘內可抵學區新市國小、正德國中
◎醫療診所:車程20分鐘抵竹圍馬偕醫院

【社區簡介】
◎萬坪公園旁,6168坪海景帝標,2300坪四季水景花園,全齡化豪奢享樂設施,365天渡假飯店生活
◎基地面積:6168 坪
◎建設公司:宏盛建設
◎營造公司:達欣工程
◎建築設計:周文斌
◎總戶數:991 戶
◎公共設施:接待大廳、中庭花園、交誼廳、會議室、閱覽室、健身房、桌球室、親子遊戲區、SPA、KTV、瑜伽教室、廚藝教室、信箱區

【法院筆錄】●點交情形→點交●
1‧4742建號拍定後依【現況點交】。
2‧債務人稱目前房屋作為倉庫使用堆放個人物品,並未實際居住。
3‧停車位目前無人使用中,亦未出租或出借予他人。
4‧投標人應自行查明債務人有無積欠管理費。《清償債務》

※流標打8折,概以執行公告為準
第一拍 04/22 底標價:1511 萬
第二拍 06/10 底標價:1209 萬
第三拍 未定 底標價:967 萬

王牌經理人,十六年以上法拍經驗豐富
眼光最精準,代標多筆億元以上的案件
在地最深耕,資源豐富廣闊人脈執行力
協助自用者,找到理想實用的房屋圓夢
幫助投資人,創造物件最高投資報酬率
最專業團隊,讓您案件事半功備又圓滿


【在地深耕,眼光精準,人脈廣闊】 
■產權清楚、案件評估、排除瑕疵事故
■全程負責、快速交屋、拍後不被騷擾
■代墊利率6.3%、額度8成、手續費0.3%
■房貸利率2.85%、免排隊、立即撥款
■法拍屋代墊款、需要資金、歡迎找我

104法拍網|透明房訊|全國最大 
◆規模最大◈歷史最久◆
全國七處分公司,300多位編制人員
成立於1986年,全國 16 家法院駐點
◆專業最強◈全國唯一◆
全國超過1800場授課專業講習
100坪倉庫,造冊拍賣遺留物
◆正派經營◈開立發票◆
營業員(99)登159091號
經紀人(96)年北市經證字01243號
一零四法拍網(股),統編28306523
◆愛心傳播◈每件捐款5000元◆
至「伊甸社會福利基金會」


能看屋的,網頁會註明。一般法拍屋查封之後無法入內參觀,可依據建物平面圖推斷室內格局是否方正,或參考樓上樓下鄰居房屋。( 預約看屋留言,一律不回 )
淡水拍賣大樓-0
淡水拍賣大樓-0
淡水拍賣大樓-1
淡水拍賣大樓-1
淡水拍賣大樓-2
淡水拍賣大樓-2
淡水拍賣大樓-3
淡水拍賣大樓-3
淡水拍賣大樓-4
淡水拍賣大樓-4
淡水拍賣大樓-5
淡水拍賣大樓-5
淡水拍賣大樓-6
淡水拍賣大樓-6
淡水拍賣大樓-7
淡水拍賣大樓-7
淡水拍賣大樓-8
淡水拍賣大樓-8
淡水拍賣大樓-9
淡水拍賣大樓-9
淡水拍賣大樓-10
淡水拍賣大樓-10
淡水拍賣大樓-11
淡水拍賣大樓-11
淡水拍賣大樓-12
淡水拍賣大樓-12
淡水拍賣大樓-13
淡水拍賣大樓-13
物件留言
請注意,如果您詢問的內容與物件不相符合或是廣告,經過審核,系統將會直接刪除您的發問內容
等待圖示
相似物件
免責聲明:House-Info房屋網平台系統為租用式開放房屋買賣網站建置平台,僅提供會員查詢-新北市,淡水區,大樓-等房屋資訊參考,並不涉入任何諮詢、交易。 物件(服務)聯絡人公佈的資訊、文字、照片、圖形、產權、廣告內容、或其他資料若有不實或違法情事,或與客戶聯絡交易過程中若衍生民事或刑事等法律問題,皆與House-Info房屋網站無關,所有商標、文章、名稱等版權,皆歸屬原著作者所有!