萬里透天法拍

法拍屋查詢,法拍屋流程,法拍屋代標

萬里透天法拍|中華商海透天愛一街7號

中華商海【透天】愛一街7號
列印
  • 售576萬
    1. 案號:108甲653法
    2. 類型:法拍透天
    3. 總登記坪數:
    4. 每坪單價:
    5. 地址:新北市萬里區愛一街7號
    1. (煩請告知聯絡人,您是在House-Info房屋網看到廣告,感恩幫忙)
    2. 0916-000-104
    1. 市話:
    2. 公司名稱:
    3. 公司地址:
    中華商海【透天】愛一街7號-QR CODE 我要留言 加LINE好友
物件介紹
詳細資料
銷售狀態
待標中
屋齡
46年
座向
朝東南
所在樓層
1~2+3/2
電梯
沒有
法拍屋
拍次
3
開標日期
115/5/4
瀏覽人次
19人次
坪數說明
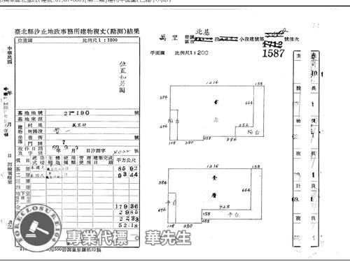
主建物
54.26
附屬建物
15.78
增建
19.21
土地登記總坪數
52.98
特色描述
貸款才是決勝點,提供預審,保證核貸
擔任『台灣不動產拍賣協會』監事


◆已經查封,無法看室內◆
◆門牌:愛一街7號
◆主建物:54.26 坪 (1層:25.99坪, 2層:28.26坪)
◆附屬:15.78 坪 (陽台:6.75坪, 平台:9.02坪)
◆增建:19.21 坪(2層頂樓增建:19.21坪)
◆土地:52.98 坪
◆土地現值:【乙種建築用地■115年公告現值:8600元/㎡】
◆房屋用途:RC造/住家用
◆房屋樓層:所在1~2+3層/總樓層2層
◆房屋朝向:朝東南

◎房屋特點:【大地坪獨棟別墅】、環境清幽空氣品質佳、增建19.21坪
◎交通動線:基金公路(台2線)、萬里大橋、近國道三號基金交流道
◎生活機能:北基新城生活圈、萬里公有零售市場、萬里老街商圈
◎在地景點:野柳地質公園、萬里觀光公園、翡翠灣、龜吼漁港
◎鄰近學校:中華商業海事職業學校500公尺以內
【法院筆錄】●點交情形→點交●
1‧本件執行標的經臺灣臺北地方檢察署105年10月26日北檢泰必105年聲扣字第79338號函辦理禁止登記,並經最高法院112年度台上字第3060號刑事判決沒收確定,經臺灣臺北地方檢察署114年8月25日函文略以,本署112年度執沒字第17號恩企實業有限公司所有之新北市萬里區北基段647地號、1587建號及同段2721建號不動產,得進行變價程序。
2‧不動產現況如下,供投標人參考,其最確切之現況,仍請投標人自行查明注意:(一)依基隆地方法院105年12月19日查封筆錄記載,執行標的為2層半磚造房屋,執行時未會晤債務人,將封條貼於門口。(二)依本分署108年11月22日勘驗筆錄記載,移送機關代理人導至現場,標的物為3層樓獨棟建物,與謄本不符,顯有增建,本件門鈴已毀損。(三)復依本分署108年12月30日勘測筆錄記載,移送機關代理人引導至現場,義務人經通知未到場,由地政事務所派測量員到場測量,說明該房屋標示3樓為增建。標的物現無人使用,屋內留有家具、家電物品,屋內漏水嚴重。(四)另新北市政府違章建築拆除大隊109年2月17日函文略以,拍賣標的違章建築處理情形標記載,違建現況為垂直增建違章建築,違建位置為屋頂,係既存違章建築,處理情形為拍照建檔列管。(五)又依109年3月19日(本分署收文日)鑑價報告所載,勘估標的為本國式鋼筋混擬土造2層樓整棟及增建物。本案建物位於北基花園新城為山坡地住宅,座落地勢平緩,為連棟双併設計,近萬里國小及萬里市場,生活機能及交通便利性尚可,勘估標的目前閒置中,其陽台及平台屋頂油漆有嚴重剝落現象。(六)另依本分署114年11月17日勘驗(指界)筆錄記載,移送機關代理人導至現場,義務人經通知未到場,現場無人居住,大門深鎖,由移送機關聯繫鎖匠,警員在場,鎖匠幾番嘗試表示鎖已鏽蝕,無法開啟,由移送機關代理人同意換鎖,大門進入後,雜草蔓延屋前至屋側空地,房屋大門鎖亦鏽蝕無法開啟,由鎖匠將門鎖撬開入內。地政人員測量2樓頂樓增建後表示與前次測量相同,沒有新增建。房屋現況無人居住,屋內僅少量家具及垃圾,牆面、天花板油漆部分剝落。(七)再依114年12月23日(本分署收文日)鑑價報告所載,勘估標的距離中華商業海事職業學校500公尺以內,距離萬里公有市場1000-2000公尺內,距離萬里觀光公園1000-2000公尺內。
3.拍定後依【現況點交】。
4‧增建部分(2721建號)為頂樓垂直增建,屬既存違建拍照建檔列管,拍定人須承擔風險。
5‧屋內動產不在此次拍賣範圍,拍定後須依程序處理遺留物,請投標人注意。《加值型及非加值型營業稅法等/可通訊投標》

※流標打8折,概以執行公告為準
第一拍 03/02 底標價:900 萬
第二拍 04/07 底標價:720 萬
第三拍 05/04 底標價:576 萬

王牌經理人,十六年以上法拍經驗豐富
眼光最精準,代標多筆億元以上的案件
在地最深耕,資源豐富廣闊人脈執行力
協助自用者,找到理想實用的房屋圓夢
幫助投資人,創造物件最高投資報酬率
最專業團隊,讓您案件事半功倍又圓滿


【在地深耕,眼光精準,人脈廣闊】 
■產權清楚、案件評估、排除瑕疵事故
■全程負責、快速交屋、拍後不被騷擾
■代墊利率6.3%、額度8成、手續費0.3%
■房貸利率2.85%、免排隊、立即撥款
■法拍屋代墊款、需要資金、歡迎找我

104法拍網|透明房訊|全國最大 
◆規模最大◈歷史最久◆
全國七處分公司,300多位編制人員
成立於1986年,全國 16 家法院駐點
◆專業最強◈全國唯一◆
全國超過1800場授課專業講習
100坪倉庫,造冊拍賣遺留物
◆正派經營◈開立發票◆
營業員(99)登159091號
經紀人(96)年北市經證字01243號
一零四法拍網(股),統編28306523
◆愛心傳播◈每件捐款5000元◆
至「伊甸社會福利基金會」


能看屋的,網頁會註明。一般法拍屋查封之後無法入內參觀,可依據建物平面圖推斷室內格局是否方正,或參考樓上樓下鄰居房屋。( 預約看屋留言,一律不回 )
新北萬里拍賣透天-0
新北萬里拍賣透天-0
新北萬里拍賣透天-1
新北萬里拍賣透天-1
新北萬里拍賣透天-2
新北萬里拍賣透天-2
新北萬里拍賣透天-3
新北萬里拍賣透天-3
新北萬里拍賣透天-4
新北萬里拍賣透天-4
新北萬里拍賣透天-5
新北萬里拍賣透天-5
新北萬里拍賣透天-6
新北萬里拍賣透天-6
新北萬里拍賣透天-7
新北萬里拍賣透天-7
新北萬里拍賣透天-8
新北萬里拍賣透天-8
物件留言
請注意,如果您詢問的內容與物件不相符合或是廣告,經過審核,系統將會直接刪除您的發問內容
等待圖示
相似物件
免責聲明:House-Info房屋網平台系統為租用式開放房屋買賣網站建置平台,僅提供會員查詢-新北市,萬里區,透天-等房屋資訊參考,並不涉入任何諮詢、交易。 物件(服務)聯絡人公佈的資訊、文字、照片、圖形、產權、廣告內容、或其他資料若有不實或違法情事,或與客戶聯絡交易過程中若衍生民事或刑事等法律問題,皆與House-Info房屋網站無關,所有商標、文章、名稱等版權,皆歸屬原著作者所有!